お客様のご要望に合わせた各種プラント事例を図面にてご紹介しております。

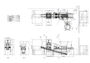
破砕選別プラント

破砕機に磁力選別機等を付帯したプラントです。
選別機はご必要に応じてアレンジさせていただきます。
参考例 図面
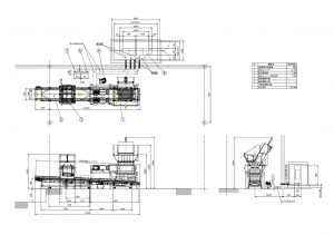
固形燃料化プラント

破砕・選別・成形・冷却等の工程を組み合わせたもので、一般的には「破砕・圧縮固化施設」と呼ばれます。
時間当たりの処理能力は0.3トンから約2.0トンまで対応可能です。
参考例 図面
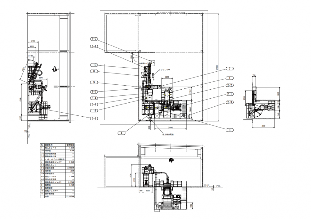
ユニット式複合プラント

弊社のユニット式破砕装置とペレット成形装置を組み合わせたものです。
設置作業が非常に簡単かつ短時間で実施可能な上、
将来的な配置変更や移設及び増設にも柔軟に対応できます。
参考例 図面
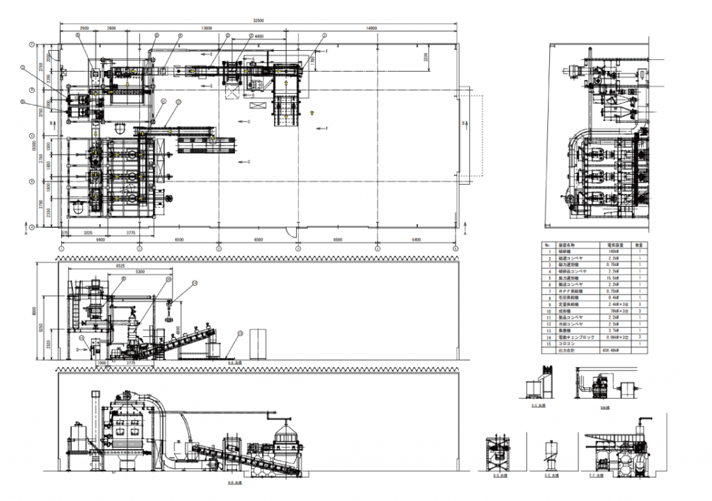
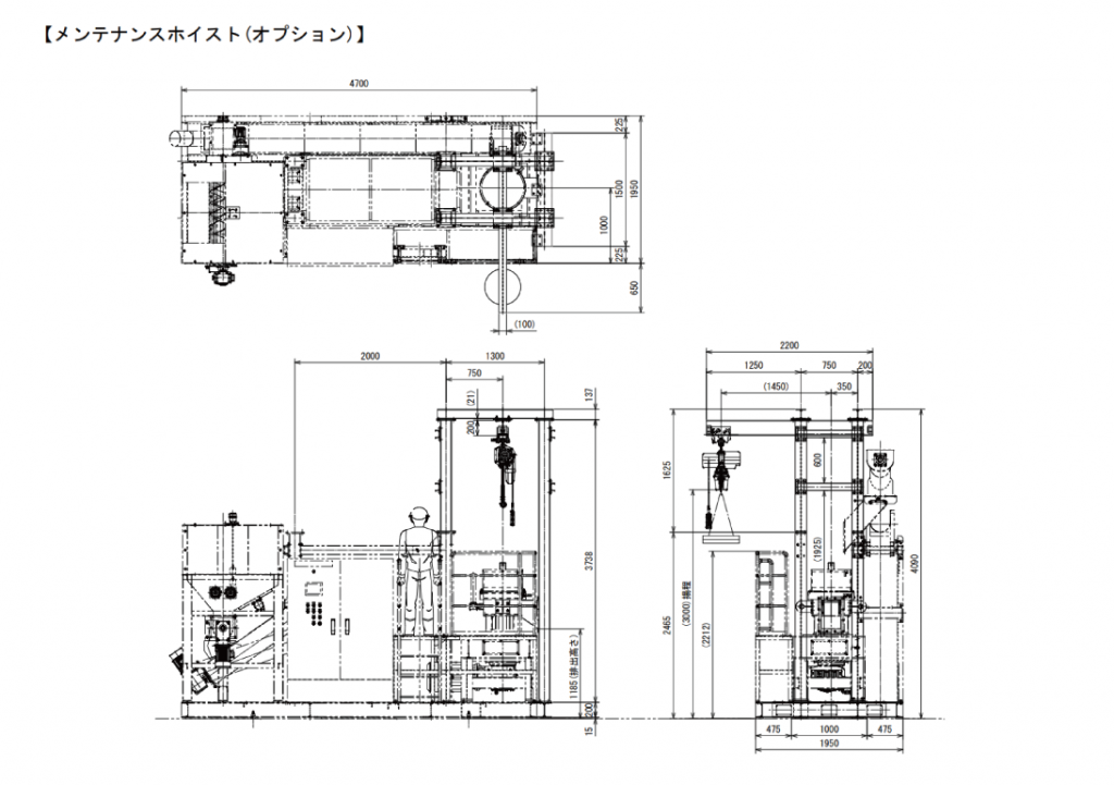
ユニットオプション

ユニット式破砕装置及びペレット成形装置に関連したオプションをご紹介します。
基本的にはユニットと連動して設置や移動が簡単な設計となっています。































